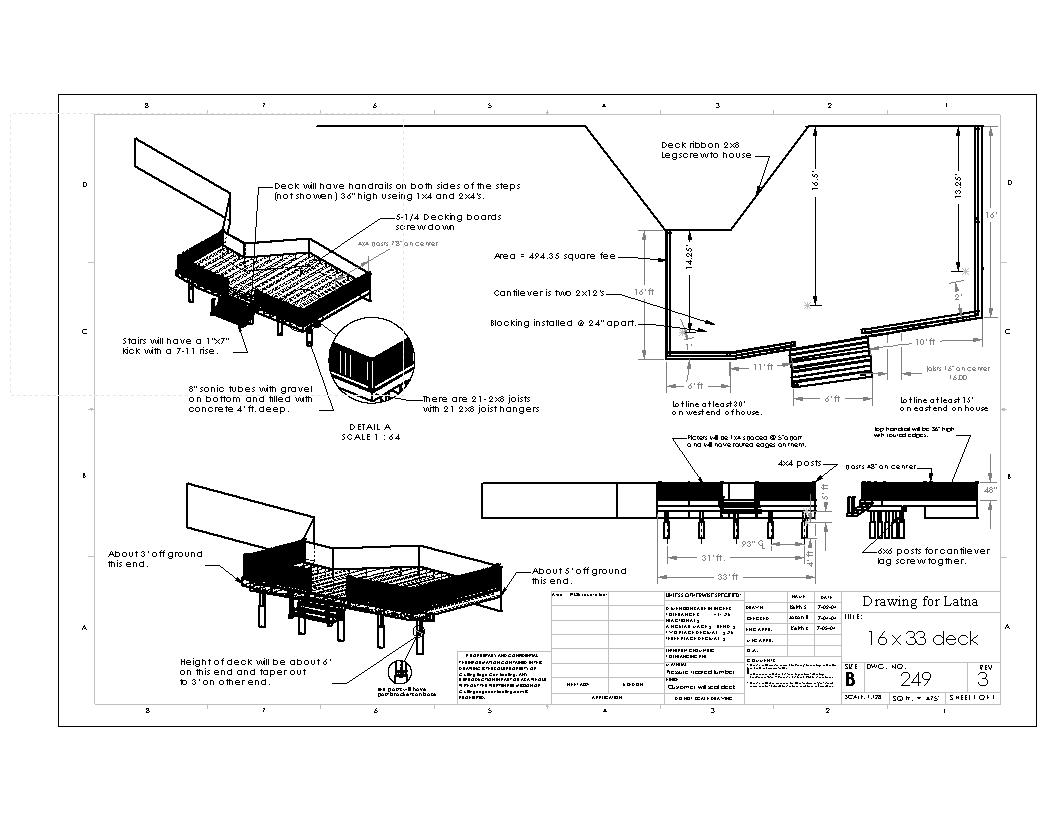
..The stairs moved in the actual build on this one below..

 

Back to CAD                      Back to Cutting Edge Contracting.com